ARTIST STUDIO
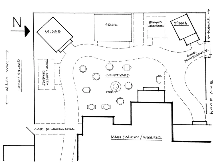
The Clearwater Gallery offers Artist Studio "A" for artists looking to create, showcase, and sell their art. The artist studio is situated on Hood Avenue, at the entrance of The Open Door Courtyard. This space is available as a weekly rental. Rates vary seasonally, please contact us for current rates and availability.
Interested?
Fill out the form below and we'll get back to you!
